Σχεδιασμός ασφάλειας δεξαμενόπλοιων και ταξινόμηση επικίνδυνων περιοχών
Είστε εδώ: Σπίτι » Νέα » Πετρελαιοφόρο » Σχεδιασμός ασφάλειας δεξαμενόπλοιων και ταξινόμηση επικίνδυνων περιοχών

Σχεδιασμός ασφάλειας δεξαμενόπλοιων και ταξινόμηση επικίνδυνων περιοχών

Προβολές:0     Συγγραφέας:Επεξεργαστής τοποθεσίας     Χρόνος δημοσίευσης: 2024-01-05      Προέλευση:Ιστοσελίδα

Ρωτώ

facebook sharing button
twitter sharing button
line sharing button
wechat sharing button
linkedin sharing button
pinterest sharing button
whatsapp sharing button
sharethis sharing button
Σχεδιασμός ασφάλειας δεξαμενόπλοιων και ταξινόμηση επικίνδυνων περιοχών


Πετρελαιοφόρο είναι πλοία εξειδικευμένα στη μεταφορά υγρών χύδην και τα φορτία αφορούν κυρίως τη μεταφορά χύδην αργού πετρελαίου και προϊόντων πετρελαίου με σημεία ανάφλεξης 60°C και κάτω.Σύμφωνα με το IEC-60092-502, τα πλοία που μεταφέρουν προϊόντα πετρελαίου με σημείο ανάφλεξης κάτω από 60°C έχουν υψηλότερο κίνδυνο και η προδιαγραφή έχει πιο λεπτομερείς απαιτήσεις για την κατανομή της επικίνδυνης περιοχής και όλος ο ηλεκτρικός εξοπλισμός στην επικίνδυνη περιοχή πρέπει να πληροί τη σχετική έκρηξη -απαιτήσεις απόδειξης.Η ταξινόμηση της επικίνδυνης περιοχής των πετρελαιοφόρο είναι ένα πολύ σημαντικό μέρος του σχεδιασμού ασφαλείας τους.


Oil Tanker-9


Αρχές ταξινόμησης επικίνδυνων περιοχών για πετρελαιοφόρο

Η ταξινόμηση των επικίνδυνων περιοχών για πετρελαιοφόρο είναι κυρίως σύμφωνα με το IEC-60092-502 για πλοία μεταφοράς υγρού φορτίου που μεταφέρουν εύφλεκτα υγρά με σημείο ανάφλεξης όχι μεγαλύτερο από 60°C.Χωρίζει τις επικίνδυνες περιοχές σε: Ζώνη 0, Ζώνη 1 και Ζώνη 2, με τη Ζώνη 0 να είναι η πιο επικίνδυνη και τη Ζώνη 2 τη λιγότερο.Αποθήκες φορτίου, δεξαμενές λαδιού και νερού, οποιεσδήποτε σωληνώσεις κενού υπό πίεση ή άλλα συστήματα εξαερισμού στον ίδιο χώρο με τα αμπάρια φορτίου και εσωτερικοί χώροι που περιέχουν φορτίο ή σωληνώσεις και εξοπλισμός που χειρίζεται εύφλεκτα αέρια ή ατμούς ταξινομούνται ως Ζώνη 0.


Ο ορισμός της Ζώνης 1 είναι σχετικά περίπλοκος και αποτελείται από τα ακόλουθα: α) κλειστούς χώρους που βρίσκονται ακριβώς δίπλα στις δεξαμενές φορτίου υγρού.β) διαμερίσματα όπου αποθηκεύονται εύκαμπτοι σωλήνες φορτίου, καθώς και κλειστοί και ημίκλειστοι χώροι που περιέχουν γραμμές φορτίου·και γ) περιοχές παρακείμενες σε καταπακτής, εξόδους αερίου ή ατμού, βαλβίδες διανομής φορτίου, φλάντζες σωλήνων φορτίου και βαλβίδες πίεσης και κενού στις δεξαμενές φορτίου υγρού.Το 2 μπορεί απλά να γίνει κατανοητό ως επέκταση της Ζώνης 1, π.χ., εγκαταστάσεις Ζώνης 1, είσοδοι, έξοδοι και ανοίγματα εξαερισμού και αέρα.Η προς τα έξω επέκταση της Ζώνης 1 στα όρια της περιοχής ανοιχτού καταστρώματος, όπως είσοδοι και έξοδοι, αερισμός και αεραγωγοί.Επιπλέον, σύμφωνα με τα χαρακτηριστικά της δομής του ανοιχτού καταστρώματος, ο χώρος αποθήκευσης φορτίου με υλικό οστού 'βγαλμένο' μέχρι ύψος 2,4 μέτρων πάνω από το κατάστρωμα θεωρείται ως Ζώνη 1 και το κατάστρωμα με 'βγαλμένο' «Ζώνη 2 θεωρείται το οστικό υλικό μέχρι ύψος 2,4 μέτρων πάνω από το κατάστρωμα.


Διάγραμμα ταξινόμησης επικίνδυνων περιοχών πετρελαιοφόρων


Διάταξη και επίδραση διαφόρων τύπων ανοιγμάτων

Τα ανοίγματα του πετρελαιοφόρο χωρίζονται κυρίως στα ακόλουθα τρία είδη: πρώτον, τα ανοίγματα για την πρόσβαση του προσωπικού και την καθημερινή χρήση, όπως καλύμματα φρεατίων, καλύμματα καταπακτής, πόρτες, παράθυρα και καλύμματα καταπατών πλυσίματος.Δεύτερον, ο εξαερισμός της καμπίνας, όπως ο φυσικός αερισμός, ο μηχανικός αερισμός, ο αερισμός με θετική πίεση.τρίτον, το αναπνεύσιμο σύστημα, όπως σωλήνες αέρα, σωλήνες βαθυμετρίας, ανακουφιστικές βαλβίδες υψηλής πίεσης, αναπνεύσιμοι ιστοί και απελευθερωτές κενού.Ο πρώτος τύπος ανοίγματος πρέπει να πληροί τις απαιτήσεις του πληρώματος για χρήση και να δίνει τη δέουσα προσοχή στην πρόσκρουση των επικίνδυνων περιοχών, και η συζήτηση εδώ επικεντρώνεται στη διάταξη και τον αντίκτυπο του εξαερισμού της καταπακτής και των ειδικών αναπνευστικών συστημάτων.


Ο λογικός και αποτελεσματικός αερισμός μπορεί να αποτρέψει τη συσσώρευση εύφλεκτων αερίων, συνήθως με τη μορφή αέρα εισαγωγής και εξαγωγής αέρα.Για τον αερισμό επικίνδυνων χώρων, πρώτον, θα πρέπει να είναι μακριά από τον αερισμό ασφαλών χώρων.Δεύτερον, η είσοδος αέρα των επικίνδυνων σημείων θα πρέπει να βρίσκεται στην ασφαλή περιοχή όσο το δυνατόν περισσότερο.Τέλος, η έξοδος αέρα δεν μπορεί να τοποθετηθεί στην πιο επικίνδυνη περιοχή, διαφορετικά το επίπεδο κινδύνου θα πρέπει να αυξηθεί.Λαμβάνοντας τη διάταξη εξαερισμού του διαμερίσματος αντλίας ενός πετρελαιοφόρο Για παράδειγμα, το διαμέρισμα της αντλίας βρίσκεται δίπλα στη δεξαμενή λαδιού φορτίου 1 περιοχής, λόγω των παραγόντων λειτουργίας του προσωπικού, αυτή η περιοχή δεν είναι αδρανής περιοχή, επομένως το περιβάλλον αερισμού του διαμερίσματος της αντλίας είναι εξαιρετικά σημαντικό.Το διαμέρισμα της αντλίας είναι στο δρόμο της άντλησης (30 φορές / ώρα) για εξαερισμό, η είσοδος και η έξοδος αέρα του θαλάμου αντλίας πρέπει να είναι όσο το δυνατόν πιο μακριά από άλλες πηγές κινδύνου και τα δύο δεν μπορούν να επηρεάσουν το ένα το άλλο.Η είσοδος αέρα πρέπει να βρίσκεται σε ασφαλή περιοχή, αλλά σύμφωνα με την προδιαγραφή, 3 μέτρα γύρω από την είσοδο αέρα του θαλάμου της αντλίας είναι επίσης επικίνδυνη περιοχή, η οποία πρέπει να λαμβάνεται υπόψη στη μελέτη.


Εξαερισμός των διαμερισμάτων αντλιών φορτίου


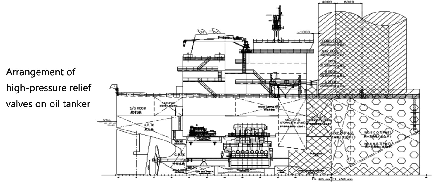
Οι βαλβίδες εξαερισμού υψηλής πίεσης, οι ιστοί εξαερισμού και οι απελευθερωτές κενού στα αμπάρια φορτίου είναι συσκευές εξαερισμού ειδικά για πετρελαιοφόρο.Αυτές οι συσκευές απελευθερώνουν λάδι και αέριο στον εξωτερικό αέρα όταν η πίεση του λαδιού και του φυσικού αερίου στο αμπάρι είναι πολύ υψηλή και επομένως η IEC έχει επίσης δώσει τα αυστηρότερα όρια στις επικίνδυνες περιοχές τέτοιων συσκευών.Η περιοχή γύρω από τον σωλήνα αναπνοής υγρού φορτίου που παρέχει μια μεγάλη ποσότητα μίγματος αερίου ή ατμού που παράγεται κατά τη διακίνηση φορτίου, το έρμα ή την αποβολή αερίου από τη δεξαμενή φορτίου υγρού, ο κατακόρυφος κύλινδρος απεριόριστου ύψους με ακτίνα 6 μέτρων προς τα πάνω από την αναπνοή σωλήνας, και η περιοχή ανοιχτού καταστρώματος μέσα σε ένα ημισφαίριο με ακτίνα 6 μέτρων προς τα κάτω από τον σωλήνα αναπνοής, ή η ημι-κλειστή περιοχή του ανοιχτού καταστρώματος, ανήκουν στη Ζώνη 1 και τα 4 μέτρα έξω από τη Ζώνη 1 ανήκουν στη Ζώνη 2 , όπως φαίνεται στο Σχ. Με απλά λόγια, η σφαίρα επιρροής τους είναι ένας κύλινδρος με ακτίνα 10 μέτρων και απεριόριστο ύψος.Η τοποθέτηση των αναπνευστήρων αποθήκευσης φορτίου πρέπει να λαμβάνει υπόψη τους ακόλουθους παράγοντες: πρώτον, κρατήστε μακριά από την υπερκατασκευή.Δεύτερον, αποφύγετε τον αερισμό της αποθήκης του καταστρώματος στο τμήμα αποθήκευσης φορτίου και τον ιστό του προβολέα καταστρώματος.Τρίτον, κρατήστε απόσταση τουλάχιστον 10 μέτρων από την πόρτα της αποθήκης του Bowman.


Τοποθέτηση βαλβίδων εκτόνωσης υψηλής πίεσης σε πετρελαιοφόρο


Conclude

Για το σχεδιασμό του πετρελαιοφόρο, η αντιεκρηκτική προστασία είναι ένα σημαντικό μέρος του σχεδιασμού ασφαλείας, εάν ο σχεδιασμός δεν είναι σωστός, θα θέσει μεγάλο κίνδυνο για τη μελλοντική χρήση.Οι σχεδιαστές θα πρέπει να δώσουν προσοχή στην ταξινόμηση των επικίνδυνων περιοχών του πετρελαιοφόρου και να δώσουν προσοχή στον συντονισμό των διαφόρων μερών στη διαδικασία σχεδιασμού, έτσι ώστε όλα τα είδη των ανοιγμάτων, ο εξαερισμός, ο αέρας και η διάταξη καμπίνας του πετρελαιοφόρο μπορεί να πληροί τους κανονισμούς και τα πρότυπα. Τσινχάι βελτιώνει συνεχώς το επίπεδο εσωτερικής διαχείρισης, δίνοντας έμφαση στον ποιοτικό έλεγχο και τη διαχείριση διαδικασιών. Έχουμε λάβει πιστοποιητικό διαχείρισης ποιότητας CCS που εκδόθηκε από την China Classification Society και περάσαμε την πιστοποίηση και την εκτίμηση περιβαλλοντικών επιπτώσεων και την αποδοχή από κυβερνητικές υπηρεσίες. Τα τελευταία χρόνια, η εταιρεία συμμορφώνεται με την εθνική στρατηγική ανάπτυξη και τις απαιτήσεις πληροφόρησης και έξυπνης ανάπτυξης της ναυπηγικής βιομηχανίας. Προωθήστε την «ενσωμάτωση των δύο» και συνεχίστε να εφαρμόζετε αυτοματισμό παραγωγής και έξυπνη κατασκευή. Έχουμε αρκετές αυτόματη συναρμολόγηση και ημιαυτόματη γραμμές παραγωγής.

ΚΑΤΗΓΟΡΙΑ ΠΡΟΙΟΝΤΟΣ

Τυχαία προϊόντα